鋼斜梯照片

鋼斜梯
鋼斜梯基礎參數
- 鋼斜梯寬度常規就是600mm800mm1000mm
- 鋼斜梯表面處理:熱鍍鋅,噴漆
- 鋼斜梯角度:
35. 45°,59 °,73°,90°5°,
鋼斜梯應用領域
適用于工業建筑室內外的作業平臺和有高差的工作場所 民用建筑的機房等輔助用房
鋼斜梯/梯型及代號
作業平臺鋼梯按傾角分為五種梯型: Tl( (35. 5° )、 T2 45 鋼斜梯,最后一種可稱鋼直梯。)、 T3 ( 59 。)、 T4(73° )、 T5 ( 90 。),前四種可稱 作業平臺鋼斜梯按梯寬(內側凈寬度)分為三種,即 mm600 (適用單向通行)、 行)和800mm (以單向通行為主,偶爾雙向通 OOOrnrn (適用雙向通行) 作業平臺鋼斜梯按梯梁選材和形式分為六種,鋼板梯梁 (A)、槽鋼梯梁( 梯梁并上端帶平臺(川、鋼板梯梁并下端帶平臺()、鋼板梯梁井上端帶平臺( )、槽鋼 )和槽 鋼梯梁并下端帶平臺作業平臺鋼斜梯按踏步板選材分為三種,花紋鋼板( 型)、鋼板上貼裝飾面(a 型)和鋼格柵板( 型)
鋼斜梯設計荷載
確定,應能承受 4.倍預定活荷載標準值,并不小于在任何點的 4kN 小于集中荷載。鋼斜梯水平投影面上的均布活荷載標準值不 3. 5kN/rn2 作業平臺鋼梯的中間平臺的設計荷載不小于 臺板在設計荷載下撓曲變形應不大于3kN/rn2 ,平 Ornrn 者取小值或跨度的 1/200 ,兩 踏板中的集中活荷載不小于 布荷載不小于1. 5kN ,在梯子內側寬度上均 2. 2kN/rn 斜梯扶手應能承受在除了向上的任何方向施加的不小于 890N集中荷載,在相鄰立柱問的最大撓曲變形應不大于跨度的 1/250。中間欄桿應能承受在中點圓周上施加的不小于 水平集中荷載,最大撓曲變形不大于700N 5rnrn 應能承受在立柱頂部施加的任何方向上。端部或末端立柱 890N 上荷載不進行疊加的集中荷載,以
鋼斜梯選用說明
作業平臺鋼梯的欄桿扶手按鋼梯的傾角分三種情況:傾角 90°鋼直梯僅頂部設欄桿;傾角 桿扶手的中間立柱間距不大于73 。和 59° 鋼斜梯支撐欄 OOOrnrn 斜梯可以從作業平臺鋼梯欄桿中選取;傾角 45° 35. 5° 鋼斜梯的涂裝標配熱鍍鋅 室外鋼斜梯的防雷電保護措施應符合《建筑物防雷設計 規范》GB 50057-2010 的要求 鋼斜梯上端作業平臺分為鋼筋混凝土結構和鋼結構兩種。 鋼斜梯下端不帶平臺的( 親混凝土基礎兩種;鋼斜梯下端帶平臺的(型)分為鋼筋混凝土樓地面和 型) 分為鋼筋混凝土樓地面和鋼結構兩種。本圖集均提供詳圖,但在鋼斜梯選用代號中不體現,施工時可以酌情選用當上端作業平臺有防止液體往下流淌要求時,可選用帶 有鋼筋混凝土翻邊的詳圖鋼斜梯梯間平臺有 種形式, 但在鋼斜梯選用代號中不體現
鋼斜梯型號介紹
- T3A06a-2.8其中T3為斜角59°鋼梯,A鋼板梯梁,06a梯寬600mm,a型踏步板,梯高2.8m
- T1F10b-3.3其中T1為斜角35.5°鋼梯,F槽鋼梯梁并下端帶平臺,10b梯寬1000mmb型踏步板,梯高3.3m
鋼斜梯型號表
| 種類 | 角度 | 型號 | 梯寬 | 梯梁 | 梯段最大高度 | 踏步板類型 |
|---|---|---|---|---|---|---|
| 鋼斜梯A | 35.5°(1:1.4) | T1A08 | 800 | -200X10 | 3.60 | a~c |
| 鋼斜梯A | 35.5°(1:1.4) | T1A10 | 1000 | -200X10 | 3.60 | a~c |
| 鋼斜梯A | 45°(1:1) | T2A06 | 600 | -180X10 | 4.50 | a~c |
|
鋼斜梯A | 45°(1:1) | T2A08 | 800 | -180X10 | 4.50 | a~c |
| 鋼斜梯A | 45°(1:1) | T2A10 | 1000 | -180X10 | 4.50 | a~c |
| 鋼斜梯A | 59°(1:0.6) | T3A06 | 600 | -150X8 | 5.10 | a~c |
| 鋼斜梯A | 59°(1:0.6) | T3A08 | 800 | -150X8 | 5.10 | a~c |
| 鋼斜梯A | 73°(1:0.3) | T4A06 | 600 | -120X8 | 4.80 | a~c |
| 鋼斜梯B | 35.5°(1:1.4) | T1B08 | 800 | 〔16a | 3.60 | a~c |
| 鋼斜梯B | 35.5°(1:1.4) | T1B10 | 1000 | 〔16a | 3.60 | a~c |
| 鋼斜梯B | 45°(1:1) | T2B06 | 600 | 〔16a | 4.50 | a~c |
| 鋼斜梯B | 45°(1:1) | T2B08 | 800 | 〔16a | 4.50 | a~c |
| 鋼斜梯B | 45°(1:1) | T2B10 | 1000 | 〔16a | 4.50 | a~c |
| 鋼斜梯B | 59°(1:0.6) | T3B06 | 600 | 〔16a | 5.10 | a~c |
| 鋼斜梯B | 59°(1:0.6) | T3B08 | 800 | 〔16a | 5.10 | a~c |
| 鋼斜梯B | 73°(1:0.3) | T4B06 | 600 | 〔12.6 | 4.80 | a~c |
| 鋼斜梯C | 35.5°(1:1.4) | T1C08 | 800 | -220X10 | 3.30 | a~c |
| 鋼斜梯C | 35.5°(1:1.4) | T1C10 | 1000 | -220X10 | 3.30 | a~c |
| 鋼斜梯C | 45°(1:1) | T2C06 | 600 | -200X8 | 4.50 | a~c |
| 鋼斜梯C | 45°(1:1) | T2C08 | 800 | -200X8 | 4.50 | a~c |
| 鋼斜梯C | 45°(1:1) | T2C10 | 1000 | -220X10 | 4.50 | a~c |
| 鋼斜梯C | 59°(1:0.6) | T3C06 | 600 | -150X8 | 5.10 | a~c |
| 鋼斜梯C | 59°(1:0.6) | T3C08 | 800 | -180X8 | 5.10 | a~c |
| 鋼斜梯C | 73°(1:0.3) | T4C06 | 600 | -150X8 | 4.80 | a~c |
| 鋼斜梯D | 35.5°(1:1.4) | T1D08 | 800 | 〔16a | 3.30 | a~c |
| 鋼斜梯D | 35.5°(1:1.4) | T1D10 | 1000 | 〔16a | 3.30 | a~c |
| 鋼斜梯D | 45°(1:1) | T2D06 | 600 | 〔16a | 4.50 | a~c |
| 鋼斜梯D | 45°(1:1) | T2D08 | 800 | 〔16a | 4.50 | a~c |
| 鋼斜梯D | 45°(1:1) | T2D10 | 1000 | 〔16a | 4.50 | a~c |
| 鋼斜梯D | 59°(1:0.6) | T3D06 | 600 | 〔16a | 5.10 | a~c |
| 鋼斜梯D | 59°(1:0.6) | T3D08 | 800 | 〔16a | 5.10 | a~c |
| 鋼斜梯D | 73°(1:0.3) | T4D06 | 600 | 〔12.6 | 4.80 | a~c |
| 鋼斜梯E | 35.5°(1:1.4) | T1E08 | 800 | -220X10 | 3.30 | a~c |
| 鋼斜梯E | 35.5°(1:1.4) | T1E10 | 1000 | -220X10 | 3.30 | a~c |
| 鋼斜梯E | 45°(1:1) | T2E06 | 600 | -200X8 | 4.50 | a~c |
| 鋼斜梯E | 45°(1:1) | T2E08 | 800 | -200X8 | 4.50 | a~c |
| 鋼斜梯E | 45°(1:1) | T2E10 | 1000 | -220X10 | 4.50 | a~c |
| 鋼斜梯E | 59°(1:0.6) | T3E06 | 600 | -150X8 | 5.10 | a~c |
| 鋼斜梯E | 59°(1:0.6) | T3E08 | 800 | -180X8 | 5.10 | a~c |
| 鋼斜梯 E | 73°(1:0.3) | T4E06 | 600 | -150X8 | 4.80 | a~c |
| 鋼斜梯F | 35.5°(1:1.4) | T1F08 | 800 | 〔16a | 3.30 | a~c |
| 鋼斜梯F | 35.5°(1:1.4) | T1F10 | 1000 | 〔16a | 3.30 | a~c |
| 鋼斜梯F | 45°(1:1) | T2F06 | 600 | 〔16a | 4.50 | a~c |
| 鋼斜梯F | 45°(1:1) | T2F08 | 800 | 〔16a | 4.50 | a~c |
| 鋼斜梯F | 45°(1:1) | T2F10 | 1000 | 〔16a | 4.50 | a~c |
| 鋼斜梯F | 59°(1:0.6) | T3F06 | 600 | 〔16a | 5.10 | a~c |
| 鋼斜梯F | 59°(1:0.6) | T3F08 | 800 | 〔16a | 5.10 | a~c |
| 鋼斜梯F | 73°(1:0.3) | T4F06 | 600 | 〔12.6 | 4.80 |
Φ20 |
| 直梯 | 35.5°(1:1.4) | T5 06 | 600 | -60X10 / -90X10 | 3.40 / 3.50~5.1 |
Φ20 |
35.5°鋼斜梯

35.5°鋼斜梯

45°鋼斜梯

45°鋼斜梯

59°鋼斜梯

59°鋼斜梯

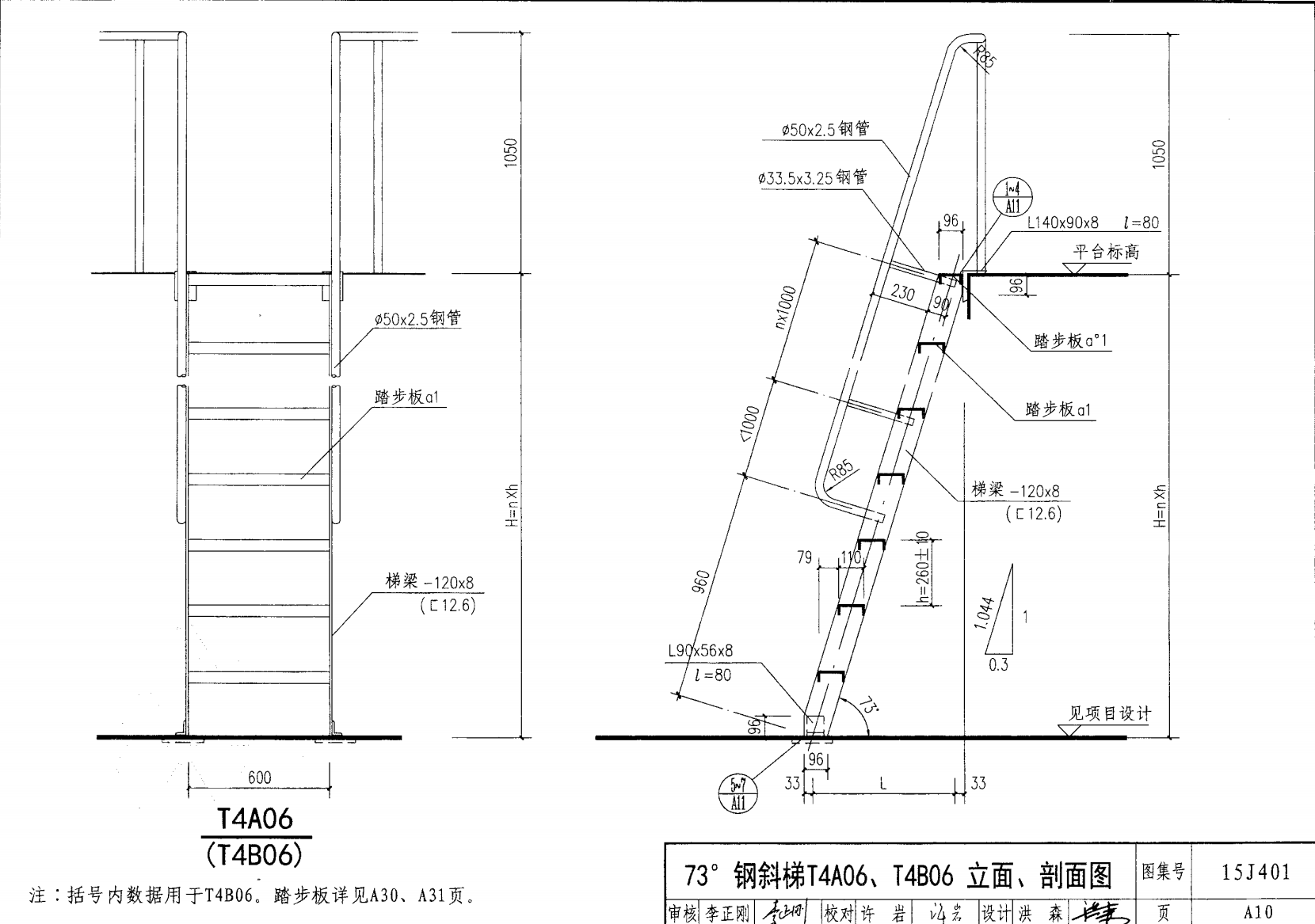
73°鋼斜梯

73°鋼斜梯

35.5°鋼斜梯

35.5°鋼斜梯平臺

45°鋼斜梯帶平臺

45°鋼斜梯平臺

59°鋼斜梯平臺

59°鋼斜梯平臺

73°鋼斜梯平臺

73°鋼斜梯平臺

35.5°鋼斜梯底部平臺

35.5°鋼斜梯平臺

45°鋼斜梯底部平臺

45°鋼斜梯底部平臺

59°鋼斜梯底部平臺

59°鋼斜梯底部平臺

73°鋼斜梯底部平臺

73°鋼斜梯底部平臺

90°鋼直梯

90°鋼直梯

踏步板

踏步板

鋼斜梯預埋件

材料表

材料表

材料表

材料表

材料表

材料表

材料表

材料表

材料表

材料表

材料表

材料表

材料表

材料表

材料表

材料表

材料表

材料表

材料表

材料表

材料表

材料表

材料表

材料表

材料表

鋼斜梯梯間平臺

鋼斜梯梯間平臺

鋼斜梯梯間平臺JTP-1-2

鋼斜梯梯間平臺JTP-3

鋼斜梯梯間平臺JTP-5

鋼斜梯梯間平臺JTP-1-JTP-5

