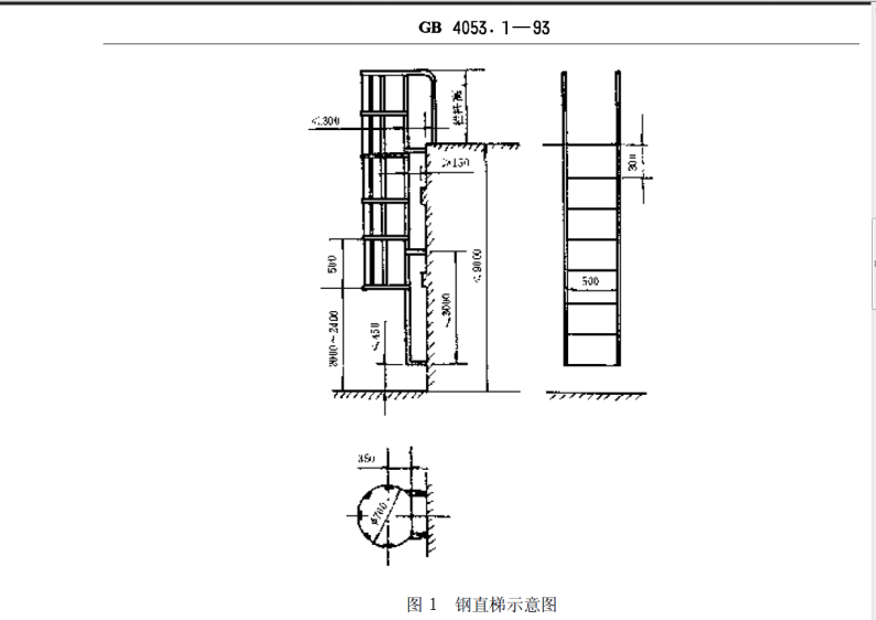
固定式鋼直梯制作技術要求
一、執行標準:
1、固定式鋼直梯安全技術條件:GB 4053.1-2009。
2、鋼直梯全部采用焊接連接焊接要求應符合GBJ 205。
二、技術要求:
1、不銹鋼直梯采用Ф32*4,材質316L的不銹鋼鋼材;寬度為500mm,即踏棍長度。
2、踏棍采用Ф32*4,材質316L的不銹鋼鋼材,長度為500mm,踏棍中心間距為300mm等距離分布。
3、不銹鋼直梯長度:5.2米,一端不銹鋼直梯保留1.1米不焊接踏棍,剩余踏棍間距為300mm等距離分布,最下端的踏棍距基準面距離不宜大于450mm。
4、不銹鋼護籠直徑應為700mm,水平圈采用50*4不銹鋼扁鋼間距為450-750mm,在水平圈內側均布焊接五根同規格扁鋼垂直條。護籠長度:3.4m,開口:564mm。
5、不銹鋼安全門采用Ф32*4,材質316L的不銹鋼鋼材;門框內均勻焊接3根不銹鋼立管;門高度為900mm,門寬度為490mm。
6、不銹鋼門軸采用材質316L的不銹鋼鋼材制作,規格:Ф14*80。
三、荷載規定:
1、踏棍按在中點承受1KN集中活荷載計算容許撓度不大于踏棍長度的1/250。
2、梯梁按組焊后其上端承受2KN集中活荷載計算高度按支撐間距選取無中間支撐時按兩端固定點距離選取容許長細比不宜大于200。
