鋼格板
護籠鋼直梯
過橋鋼斜梯
鍍鋅檢修鋼斜梯
不銹鋼鋼斜梯
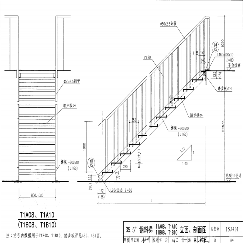
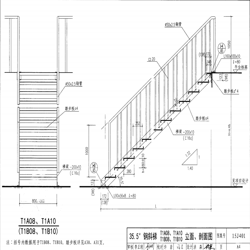
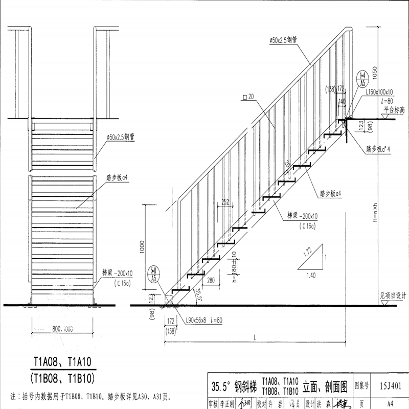
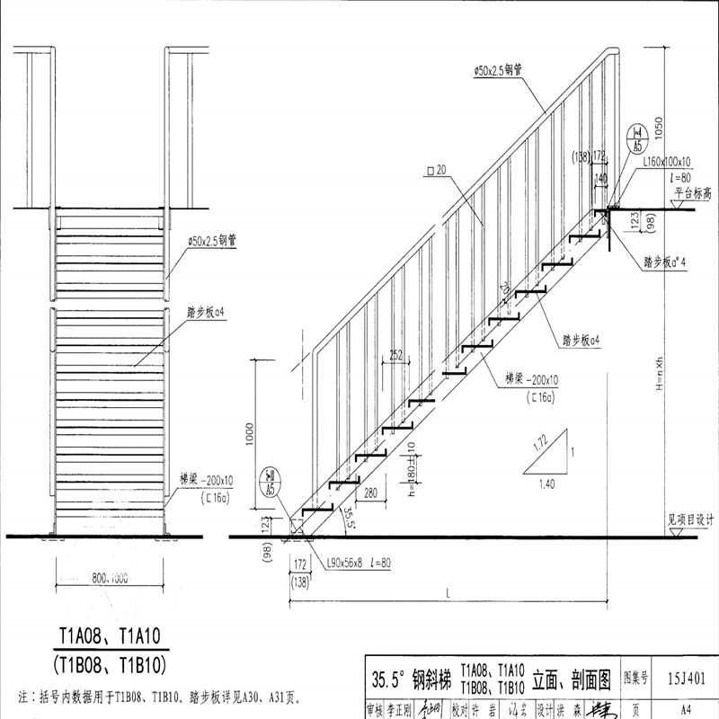
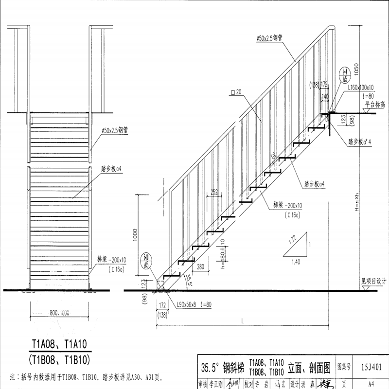
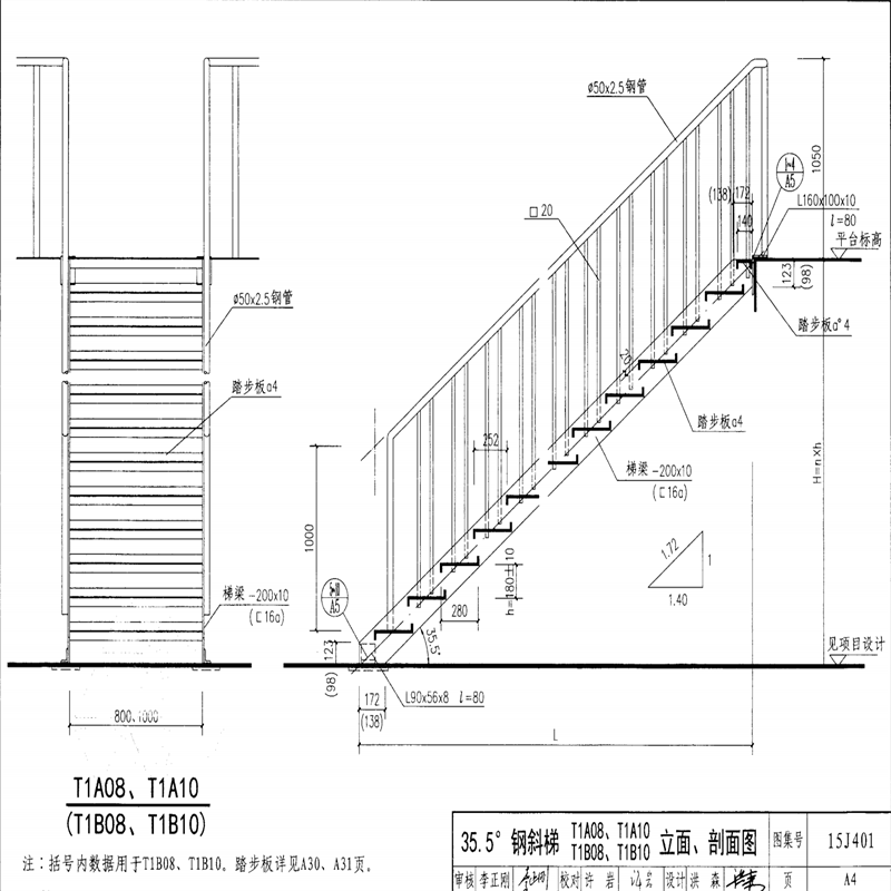
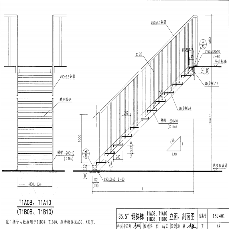
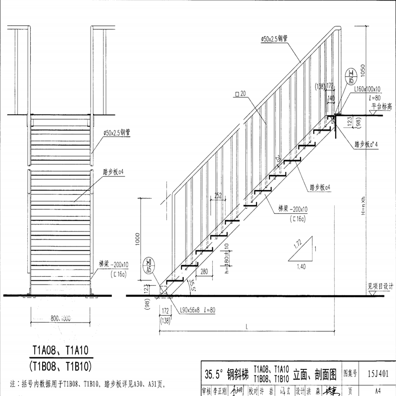
鍍鋅鋼斜梯
熱鍍鋅作業平臺鋼斜梯
室外鋼斜梯
檢修平臺鋼斜梯
作業平臺鋼斜梯
檢修鋼斜梯
中柱式鋼螺旋梯
旋轉樓梯戶外
手機:182-0333-2444 電話:188-0318-0271 地址: Copyright ? 2020 河北逍迪絲網制品有限公司 版權所有 冀ICP備17023073號-2 XML地圖